Lotissement ou permis d'urbanisation
Lotissement ou permis d'urbanisation
Il n'est pas toujours nécessaire d'obtenir un permis de lotir ou d'urbanisation pour diviser un bien. Consultez-nous pour que nous puissions vous renseigner les diverses possibilités et obligations.
Conformément à l'article D.IV.2, est soumise à permis d’urbanisation préalable, écrit et exprès de l’autorité compétente, l’urbanisation d’un bien, en ce compris la promotion ou la publicité y afférente.
L’urbanisation d’un bien consiste à mettre en oeuvre une conception urbanistique portant sur un projet d’ensemble
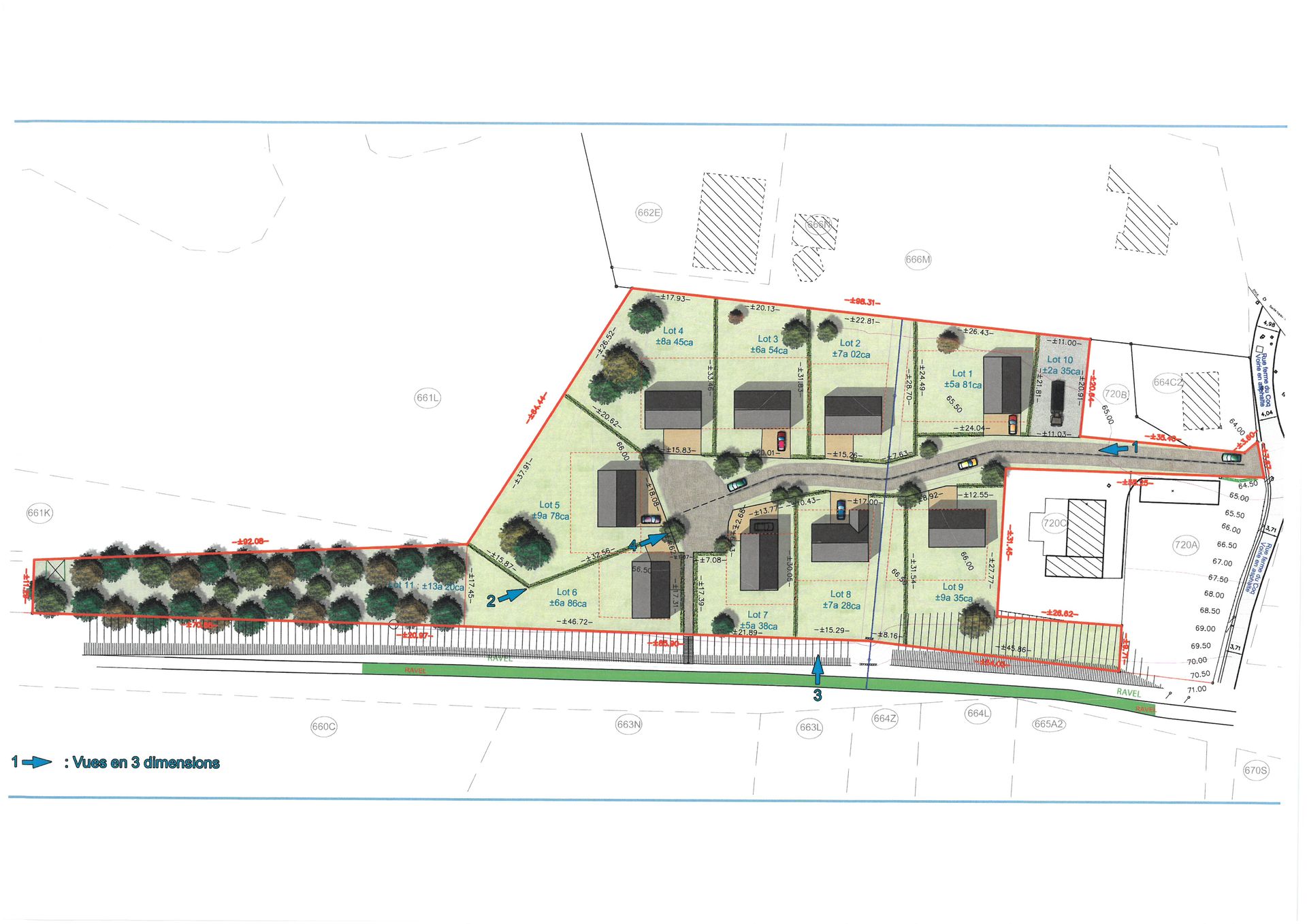
relatif à un bien à diviser en au moins trois lots non bâtis destinés à l’habitation. Le projet d’ensemble vise principalement la construction de bâtiments destinés, en tout ou en partie, à l’habitation ou le placement d’une installation fixe ou mobile pouvant être utilisée, en tout ou en partie, à l’habitation ainsi que, le cas échéant, la construction ou l’aménagement d’espaces publics ou collectifs, d’infrastructures techniques ou de bâtiments abritant des fonctions complémentaires à l’habitat.
La législation en matière de permis de lotir ou d'urbanisation est complexe et évolue généralement au gré des règlements régionaux ou locaux, nous essayons d'être à la pointe dans ce domaine. La diversité et complexité de missions qui nous ont été confiées nous amènent à maîtriser ces situations.
De nombreux promoteurs habitués aux démarches administratives nous confient leurs projets de lotissement, mais nous accompagnons aussi des particuliers désireux de rentabiliser eux-mêmes leur patrimoine. Pour ce faire nous suivons le dossier de A à Z depuis la vue des lieux avec le propriétaire jusqu'à la mise en vente par le notaire ou l'agent immobilier. L'accompagnement du client est une priorité évitant bien des soucis à ce dernier. Nous faisons une estimations préalable du coût global du lotissement (honoraires, délais administratifs, travaux d'équipement,…) ensuite nous nous chargeons de toutes les étapes du dossier (mesurage, contacts administratifs, contacts riverains, permis de lotir, dossier technique pour les équipements, appel d'offre aux entreprises, suivi des chantiers, contrôle des factures, coordination avec les régies de distribution, réception des chantiers, bornage des lots, …)
Il est important de réaliser les lotissements en les intégrant dans le paysage existant en concertation avec les administrations, les riverains et les architectes. Il est agréable de dessiner des parcelles que nous aimerions habiter et surtout que le résultat bâti soit intégré.
Consultez-nous que nous puissions évaluer le potentiel de votre bien à lotir, le coût de son équipement, les délais de son étude et de sa mise en œuvre. Vu la nécessité de maîtriser en détail la législation, nous ne réalisons des études de lotissement qu'en région wallonne.
